Skip to content
FZArchitect Logo
  • Home
  • About
  • Design Philosophy
  • Services
  • Portfolio
  • Contact
  • Menu text

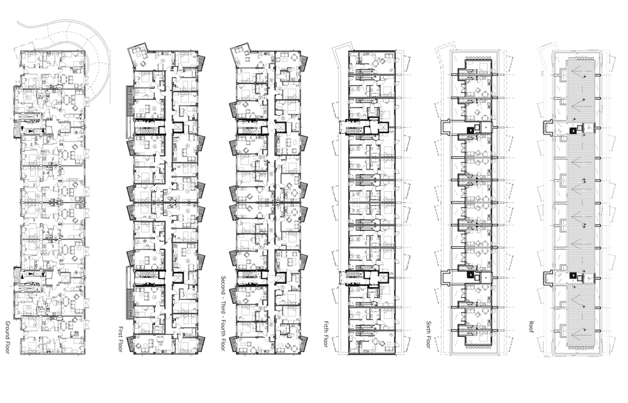
Murray Grove – London – plans L.0-6

Posted on June 10, 2017August 15, 2017 by francesco
← Previous Next →
© Francesco Zafarana Architect
A SiteOrigin Theme